Australia

$449,000 to $459,000

54 Ocean View Drive, Nepean Bay, SA 5223

# Location

Description

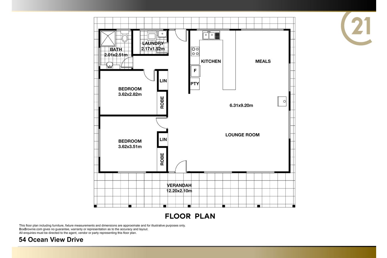
Century 21 on Kangaroo Island presents this opportunity to live 'beach side' at Nepean Bay, just a short walk from the ocean. Facing north and sited on an 892m2 (approx.) allotment, the home currently offers 2 large bedrooms, a light filled living room and open plan kitchen/dining.

The inviting floor plan makes for simple living, with high pitched ceilings giving a spacious feel to a 2 bedroom floor plan. Built circa 2013, the home is privately sited and offers an ideal option for permanent living or holiday letting. Slow combustion wood fire keeps the winter chills at bay and ceiling fans circulate the air in the summer months.

Property Features:
- Mains power connection
- 1 x 22,500L rain water tank
- Large shed with concrete floor and power
- Enviro cycle septic system, enabling re-use of the grey water for garden purposes
- Slow combustion fire
- Ceiling fans in each room
- Fenced rear yard to secure pets

If you are looking to slow down and enjoy a more pleasant pace of life, this could be the ideal property!

Arrange an inspection today!

Contact Michael Barrett on 0427 727 333 anytime.

View More #

Floor Plans

Location

  • Contact the agency

    To request an inspection

  • # Call # Email

Michael Barrett

Agent Name

# Report Listing

Looking for a property?

  • Top listings
  • Investment
  • Development
  • Personal home
  • Price reports
  • Suburb reports

Do you own a property?

  • Place a free listing
  • Services for private advertisers
  • Guide to selling your home
  • Insurance
  • Improve the photos of your listing
  • Value your property for free

Are you a real estate proffesional?

  • Publish your agencies properties
  • Already a client? Log into your account
  • Advertising on Australian Real Estate
  • Australian Real Estate data technology for property insights
  • Real Estate courses